Neuigkeiten 2018

Wir freuen uns über eure Anmeldung.

Für 30 Euro könnt ihr Essen und trinken was das Zeug hält.

Jugendliche unter 15 Jahre zahlen 10 Euro. 

Ihr meldet euch an, indem ihr den Kostenbeitrag auf folgendes Konto überweist.

 

Kontoinhaber:          Trägerverein ASH e.V.

IBAN:                       DE 02 3206 1384 4800 9480 16

BIC:                         GENODED1GDL

 

Als Verwendungszweck tragt bitte den oder die Namen ein, für die bezahlt wurde.

Sollte am Ende des Tages noch Geld übrigbleiben, wollen wir dies für den Neubau des Geräteraumes verwenden.

 

 

Übrigens, die Jugend feiert in der Turnhalle.

Silvester 2018 / 2019

Gästeliste

Kerstin und Karl Heinz Erps

Irmgard und Willi van de Pasch

Heinz Ritterbach

Dagmar und Rolf Heek

Iris und Stefan Thissen

Steffi, Petra und Jakob U

Renate und Michael Schwarz

Klemens Spronk

Marion und Georg Elbers

Claudia und Norbert Peters

Anita und Ludger Spronk

Sandra Schwarz

Rosi und Franz U

 

 

 

900 Jahre Hommersum

Wenn du mehr über dieses Thema erfahren möchtest, dann klicke auf den nachfolgenden Link:

 

www.hommersum900.de

 

 

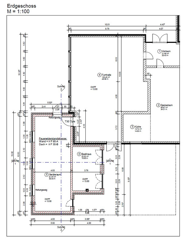
Hommersum bekommt einen Geräteraum und ein Backstube

Nach einer längeren Phase des organisieren ist es nun soweit.

Der Bauantrag für den dringend benötigten Geräteraum wurde bei der Stadt Goch eingereicht,

Darüber hinaus soll noch ein Backstube gebaut werden. Dies ist ein Projekt aus Anlass des 900jährigen Bestehens von Hommersum.

Die finanziellen Mittel hierfür werden vom Kreis Kleve zur Verfügung gestellt.

Um Zeit und Kosten zu sparen, werden die Projekte natürlich zusammen erreichtet.

Wir hoffen in Kürze eine Baugenehmigung zu bekommen.

 

 

 

 

Die komplette Bauzeichnung könnt ihr unter folgendem Download herunterladen.

Lageplan mit Geräteraum und Backhaus
LP18_12_17.pdf
Adobe Acrobat Dokument 7.2 MB
Bauzeichnung Gerätehaus und Backhaus
171215_Gerätehaus_Backhaus_A1-Plan.pdf
Adobe Acrobat Dokument 835.2 KB

Wir danken der Sparkasse Goch Kevelaer Weeze für die Unterstützung bei unserer Vereinsarbeit.